
北山地区について
蓼科、白樺湖などの観光地を抱えているエリアです。農村集落が広がり、別荘地も含めた広大な地域です。標高が高く、冬は雪が比較的多い地区ではありますが、山の間近で静かに田舎暮らしを満喫したいという方には最適です。別荘やその周辺エリアは移住者に人気です。
北山地区の物件一覧
3件の物件登録があります。
c0011


おすすめポイント
古民家風の黒く太い梁が趣を感じさせます。
敷地も広いので、多様な利用方法が考えられます。
- 所在地 長野県茅野市北山湯川1194-2
- 価格 750万円
- 敷地面積 903.22㎡
- 間取り 8DK
- 築年月 1926年5月
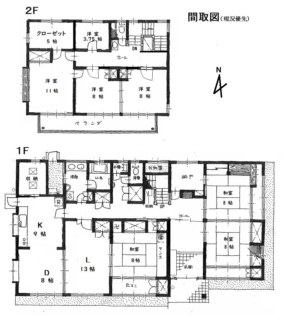
j0032


こだわり条件
おすすめポイント
北山湯川区の大門街道沿いに建つ床暖房(動作確認済)のある中古住宅です。敷地内に住宅の他に土蔵とガレージ車庫、池、家庭菜園あり。広いリビングダイニングと個室が多いので民泊などの営業にもおすすめです。(ボイラー交換済)
標高965m
- 所在地 長野県茅野市北山1062-1
- 価格 2,500万円
- 敷地面積 938.39㎡
- 間取り 7LDK
- 築年月 1994年11月
c0018


こだわり条件
おすすめポイント
八ヶ岳の眺望の良い農地付の広い敷地
- 所在地 長野県茅野市北山8266
- 価格 800万円
- 敷地面積 548.3㎡
- 間取り 2K
- 築年月 1983年6月